课程名称:《建筑施工工艺》
项目名称:综合楼工程框架梁钢筋下料长度计算
指导教师:王义剑
实施班级:1507101
实施时间:2016年4月
《框架梁钢筋下料长度的计算》项目实施方案
课程:建筑施工工艺 |
任课老师:王义剑 |
一、项目名称:综合楼工程框架梁钢筋下料长度计算 二、实施时间:4月11日(周一)第5-6节课,4月12日(周二)第3-4节课 三、实施地点:107、108教室 四、实施班级:1507101、1507102班 五、教学内容: 1.钢筋下料计算的依据; 2.钢筋弯曲的量度差值及弯钩增加值; 3.下料长度的计算; 4.钢筋配料单的制作; 5.料牌制作。 六、教学组织:班级共50人,每5人一组,实行组长负责制,组长负责任务分解、安排及实施,组长要保证小组每个成员能完成工作任务。 七、实施步骤: 1、发任务工单,布置任务 2、案例教学 3、小组讨论,完成任务 4、小组自评 5、小组互评 6、教师评价及总结
八、考核方式:按照任务工单,对学生的课堂纪律、任务完成的质量和时间等进行小组自评、小组互评、老师评价三个方面综合考核。
|
任务工单1 框架梁钢筋下料长度计算
课程 |
建筑施工工艺 |
教师 |
王义剑 |
工作任务 |
综合楼工程框架梁钢筋下料长度计算 |
学时 |
2 |
姓名 |
|
学号 |
|
班级 |
|
日期 |
2016.4.11 |
任务描述:能运用国家现行规范熟练计算综合楼工程框架梁钢筋下料长度。 综合楼工程,框架结构,抗震等级为二级,KL1有5根,其配筋如图所示,混凝土强度等级为C30,柱保护层厚度均为20mm,柱截面尺寸如图所示,轴线居中,试计算KL1梁上部通长筋、支座负筋的下料长度、编制其钢筋配料单并制作料牌。
 1.人员分工
2.计算过程 (1)上部通长筋下料长度=
(2)左端支座负筋的下料长度=
(3)右端支座负筋的下料长度=
3.编制钢筋配料单
|
构件 名称 |
钢筋编号 |
简 图 |
直径 (mm) |
钢筋 级别 |
下料长 度(mm) |
单位 根数 |
合计 根数 |
KL1 共 根 |
① (上部通长筋) |
|
|
|
|
|
|
② (左端支座负筋) |
|
|
|
|
|
|
③ (右端支座负筋) |
|
|
|
|
|
|
4.制作钢筋下料牌

5.总结(总结所学的关键知识点,规范规定、计算过程等要进行记录)
6.学生考核
考评项目 |
小组自评 |
小组互评 |
教师评价 |
备注 |
素质考评30 |
课堂纪律10 |
|
|
|
|
团队意识20 |
|
|
|
|
任务完成情况考评70 |
完成时间10 |
|
|
|
|
任务安排10 |
|
|
|
|
任务实施20 |
|
|
|
|
完成质量30 |
|
|
|
|
其他 |
|
|
|
|
合计100 |
|
|
|
|
综合评价100 |
|
|
组长签字: 教师签字:
1507101班第一组任务工单


1507101班第二组任务工单


1507101班第三组任务工单


1507101班第四组任务工单


1507101班第五组任务工单


1507101班第六组任务工单


1507101班各小组长汇报



建筑技术学院项目化教学资料
课程名称:《建筑施工工艺》
项目名称:水岸国际工程板钢筋下料长度计算
指导教师:王义剑
实施班级:1507101
实施时间:2016年5月
《水岸国际工程板钢筋下料长度计算》项目实施方案
课程:建筑施工工艺 |
任课老师:王义剑 |
一、项目名称 :综合楼工程有梁楼盖板钢筋下料长度计算 二、实施时间:5月9日(周一)第5-6节课,5月10(周二)第3-4节课 三、实施地点:107、108教室 四、实施班级:1507101、1507102班 五、教学内容: 1.钢筋下料计算的依据; 2.钢筋弯曲的量度差值及弯钩增加值; 3.下料长度的计算; 4.钢筋配料单的制作; 5.料牌制作。 六、教学组织:班级共50人,每5人一组,实行组长负责制,组长负责任务分解、安排及实施,组长要保证小组每个成员能完成工作任务。 七、实施步骤: 1、发任务工单,布置任务 2、案例教学 3、小组讨论,完成任务 4、小组自评 5、小组互评 6、教师评价及总结
八、考核方式:按照任务工单,对学生的课堂纪律、任务完成的质量和时间等进行小组自评、小组互评、老师评价三个方面综合考核。
|
任务工单2 板钢筋下料长度计算
课程 |
建筑施工工艺 |
教师 |
王义剑 |
工作任务 |
水岸国际工程板钢筋下料长度计算 |
学时 |
2 |
组长姓名 |
|
学号 |
|
班级 |
|
日期 |
|
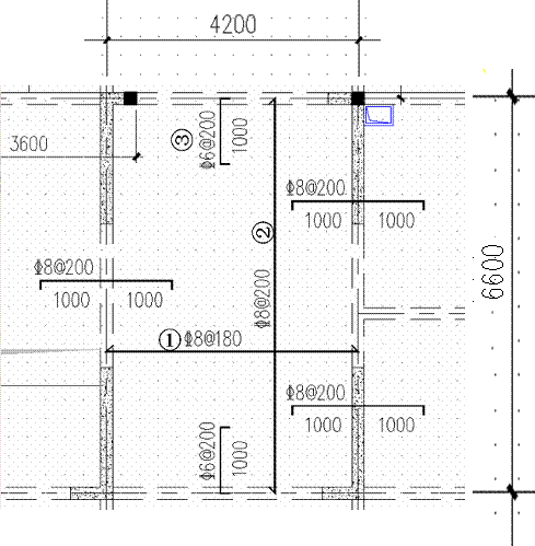
任务描述:能运用国家现行规范熟练计算水岸国际工程板钢筋下料长度。 水岸国际工程,框架结构,抗震等级为三级,其屋面板配筋如下图所示,梁保护层厚度均为25mm,板保护层厚度为20mm,板厚为120mm,板四周梁宽均为200mm,轴线居中,试计算板①号、②号、③号钢筋的下料长度。
 1.人员分工
2.计算过程 ①号钢筋下料长度=
②号钢筋下料长度=
③号钢筋下料长度=
3.总结(总结所学的关键知识点,规范规定、计算过程等要进行记录)
4.学生考核
|
考评项目 |
小组自评 |
小组互评 |
教师评价 |
备注 |
|
|
素质考评30 |
课堂纪律10 |
|
|
|
|
|
|
团队意识20 |
|
|
|
|
|
|
任务完成情况考评70 |
完成时间10 |
|
|
|
|
|
|
任务安排10 |
|
|
|
|
|
|
任务实施20 |
|
|
|
|
|
|
完成质量30 |
|
|
|
|
|
|
其他 |
|
|
|
|
|
|
合计得分 |
|
|
|
|
|
|
综合得分 |
|
|
|
|
组长签字: 教师签字:
各小组任务工单






